[Gärten und Grünanlagen]
ich biete Ideen, Planung, Kalkulation und Baubetreuung.
Kleine “komprimierte” Vorgarten-Idylle
Weiße Quarzkiespfade zwischen Buchsskulpturen.
Neue Vorgarten-Pflasterung
Waschbetonplatten sollten durch Natursteinpflaster ersetzt werden.
CAD-Skizzen (LibreOffice)
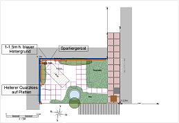
Die Hauszuwegungen wurden über eine Fläche zusammenfasst zu einer kleinen Hofsituation. Empfangs- und Grillmöglichkeit vor dem Haus. Aufnahme des hier abknickenden Erschließungsfußwegs. Gehölz als Zentrum und in der Erschließungsweg-Sichtachse (von Westen, "rechts"). Öffnung und Anschluß der Beete zu Nachbarflächen möglich. Als Natursteinpflaster wurden ein zum rot verklinkerten Haus passendes Quarzit-Kleinpflaster und Sandsteinplatten gewählt. Das Pflaster liegt, bei schwerem lehmig-tonigen Unterboden, auf “Mineral” und in Splitt, um die Fläche besonders pflegeleicht zu gestalten.
Kleine Privatgärten

Raumbildung. In einem Kies-Hinterhof (1-3 Etagen, Untergrund sandreich) Pflanzhochbeete angelegt. Die Beete begrenzen einreihige, zwei-drei-Steine-über-Kies hohe Mäuerchen aus rotem Klinker.
An den Wänden getrimmte Kletterpflanzen (Efeu, Wein, Spaltköpfchen), zentral: getrimmte Scheinzypresse.
Entsiegelung. Aufgenommene Platten wurden zu Struktur- und Sitzelementen im Terrassenbereich umfunktioniert: acht Platten hoch plus Sitzholzabdeckung ("Entsiegelungs-Accessoire"). Apfelbaum einbezogen. Als Gebäudeumwegung ein Grasweg (Rollrasen).

Erweiterung: Ein halb mit Gehwegplatten versiegelter Hinterhofgarten (1-4 Etagen) mit zwei Kräuterbeeten. Die Nutzung ist vorwiegend als "Sichtgarten mit Skulpturen". Die Platten wurden als Unterlage für eine helle Quarzkiesschüttung 16/32 verwendet. Kräuterbeeten unveränderet.
An zwei Wänden ein Kletterspalier (Douglasie gehobelt für Spalierbirne und Spaltköpfchen), mit einer Bahn blauer Fassadentafel hinterlegt, als "Horizont".